見学 小柏研究室

2026/04/05

Visit the Tsuchiya Family Residence (Enzan, Koshu City, Yamanashi Prefecture, National Registered Cultural Property (Heisei 29))

文責:吉川駿平(修士1年)

 

概要

建立:明治時代初期

構造形式:木造2階建て、一部3、4階、瓦葺き   

所在:山梨県甲州市塩山三日市場3313−1

 

所見

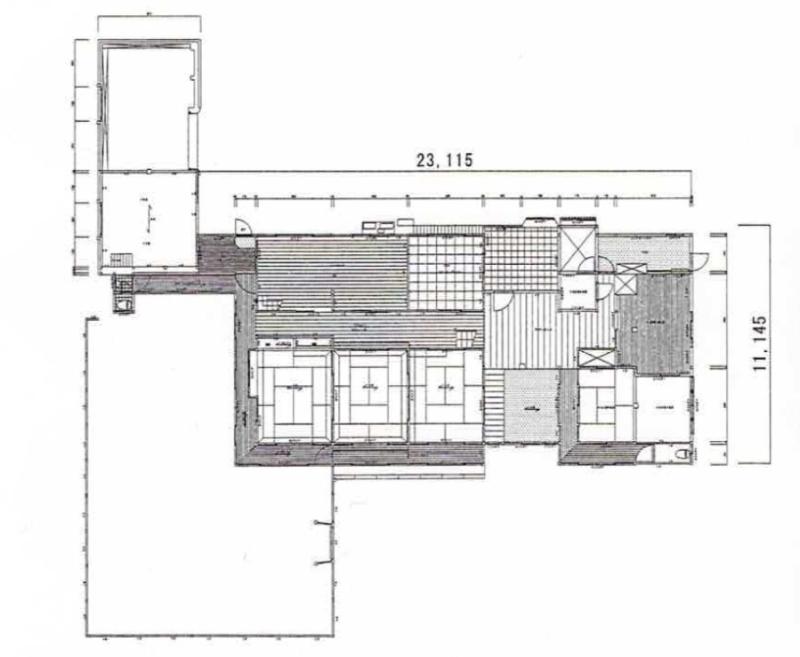
養蚕民家を改修して使用している。3,4階は養蚕のためのものである。2階屋根上に突き上げ屋根の3、4階を重ねる外観が特徴的であった。中央に玄関をおき、左前面に10畳間を3室並べる広さをもつ。この3室は建築当初の形式を残す箇所である。家族構成の変化に伴い、昭和35年、45年に2階より上を中心に改修が行われ、H15にも2世帯住宅への改修を行い、現在まで住みつないでいる。

 

 

 

 

 

参考文献

山梨県教育委員会学術文化財課『山梨県尾近代和風建築~近代和風建築総合調査報告書~』青柳印刷株式会社2015/3/16